- Two-bedroom first-floor flat in a converted chapel
- Located less than 100 metres from the harbour in West Looe
- Vacant possession with no onward chain
- Requires updating throughout
- Open-plan living/dining/kitchen with arched double-glazed windows
- Gas central heating and mains services connected
- Parking space for one vehicle
- Leasehold (999 years from 1980), EPC D, Council Tax Band A
Full Description
A two-bedroom first-floor flat set within a character converted chapel, positioned at the foot of West Looe Hill and less than 200 metres from the harbour in West Looe. Offered with vacant possession and no onward chain, the property would benefit from updating throughout, presenting an excellent opportunity for buyers to modernise and add value. Ideal as a main home or long-term residential investment (holiday letting is not permitted under the lease). EPC C.
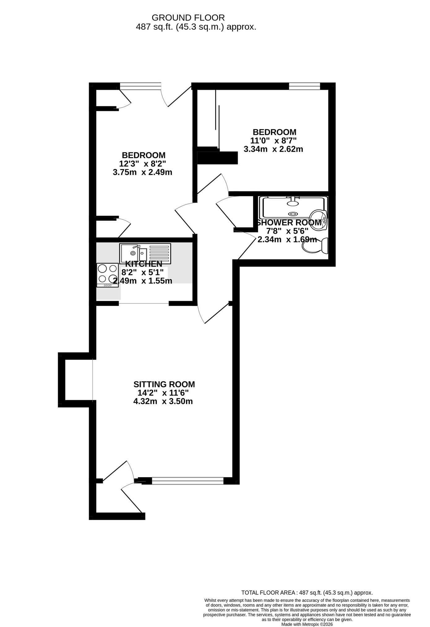
Apartment 3, Dingles Folly is a ground floor apartment forming part of a converted Victorian chapel of only eight apartments in total. The property benefits from its own private entrance directly into the apartment, along with rear access to the side parking off the bedroom.
A side passage provides access to number 3 through to the porch and into the living space of the apartment. A large living room with kitchen situated to one side. An inner hallway provides access to the wet room with shower, low level WC and basin, along with the two double bedrooms with one providing access to the rear parking area.
The property further benefits from gas central heating and private parking.
Chapel Ground is situated just off West Looe Hill in West Looe, only yards from the Harbour and close to local amenities including a popular deli, West Looe General Stores and the public house, The Jolly Sailor. The foot ferry runs from East Looe when the tide is in, and alternatively the walk around via Looe Bridge takes approximately five minutes.
Property Information
Services: Mains electricity, gas, water and drainage.
Windows: Wooden
Heating: Gas combination boiler for hot water and central heating to a system of radiators
Tenure: Leasehold 999 years from 2008 with a shared freehold (8 apartments in total). Ground rent, insurance and maintenance £880.00.
Under the terms of the lease, holiday letting is not permitted.
Council Tax Band: A.
Flood Risk - Very Low. Located within a conservation area.
Viewing
Please contact us on 01503 263841 if you wish to arrange a viewing appointment for this property, or require further information.
Energy Performance Certificate
Click here to view the Energy Efficiency Rating and Environmental Impact Rating for this property.
Disclaimer
Popes Estate Agents - PL13 endeavour to maintain accurate depictions of properties in Virtual Tours, Floor Plans and descriptions, however, these are intended only as a guide and purchasers must satisfy themselves by personal inspection.
Apartment 3, Dingles Folly is a ground floor apartment forming part of a converted Victorian chapel of only eight apartments in total. The property benefits from its own private entrance directly into the apartment, along with rear access to the side parking off the bedroom.
A side passage provides access to number 3 through to the porch and into the living space of the apartment. A large living room with kitchen situated to one side. An inner hallway provides access to the wet room with shower, low level WC and basin, along with the two double bedrooms with one providing access to the rear parking area.
The property further benefits from gas central heating and private parking.
Chapel Ground is situated just off West Looe Hill in West Looe, only yards from the Harbour and close to local amenities including a popular deli, West Looe General Stores and the public house, The Jolly Sailor. The foot ferry runs from East Looe when the tide is in, and alternatively the walk around via Looe Bridge takes approximately five minutes.
Property Information
Services: Mains electricity, gas, water and drainage.
Windows: Wooden
Heating: Gas combination boiler for hot water and central heating to a system of radiators
Tenure: Leasehold 999 years from 2008 with a shared freehold (8 apartments in total). Ground rent, insurance and maintenance £880.00.
Under the terms of the lease, holiday letting is not permitted.
Council Tax Band: A.
Flood Risk - Very Low. Located within a conservation area.
Viewing
Please contact us on 01503 263841 if you wish to arrange a viewing appointment for this property, or require further information.
Energy Performance Certificate
Click here to view the Energy Efficiency Rating and Environmental Impact Rating for this property.
Disclaimer
Popes Estate Agents - PL13 endeavour to maintain accurate depictions of properties in Virtual Tours, Floor Plans and descriptions, however, these are intended only as a guide and purchasers must satisfy themselves by personal inspection.

