- Beautifully restored period cottage finished to a high standard throughout
- Prime location in the heart of Polperro, just yards from the picturesque harbour
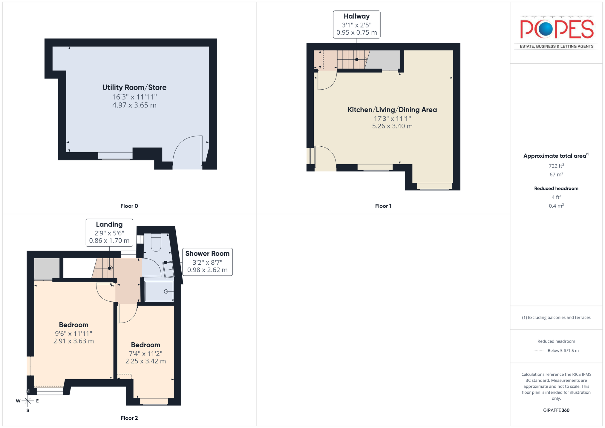
- Stylish open-plan sitting, dining and kitchen area with quality fittings
- Two bedrooms
- Modern shower room
- Separate under storage room/utility space
- Successful Holiday Let
- Offered with Vacant Possession
Full Description
Gull Cottage is a beautifully restored Grade II period cottage, finished to an exceptional standard throughout. Located in the heart of the historic fishing village of Polperro, just yards from the harbour. Set within the traffic-free Warren, offering a peaceful yet central village position. EPC.
Gull Cottage is a beautifully restored Garde II period cottage, finished to an exceptional standard throughout and ideally positioned in the heart of the historic fishing village of Polperro, just moments from the picturesque harbour. Tucked away within the traffic-free Warren, the property offers charm, comfort and a prime village location.
The accommodation is arranged over two floors and includes a stylish open-plan living space with a comfortable sitting area, dining space and a superbly appointed kitchen featuring an oven and hob, fridge/freezer, microwave and a traditional butler’s sink. A separate under-cottage utility room provides a washer/dryer and houses the electric central heating boiler.
On the first floor are two well-proportioned bedrooms, comprising a double bedroom and a flexible twin room, alongside a modern and well-finished shower room. Throughout the cottage, tasteful décor, quality fittings and a blend of antique and contemporary furnishings enhance the character of this delightful home. The property further benefits from gas central heating.
Currently a successful holiday let and offered with vacant possession.
Property Information:
Tenure - Freehold, Local Authority - Cornwall Council, Council Tax Band - Currently rated for business use (previously C), Utilities - Mains electric, water and drainage, electric central heating system in place, Construction - Stone and Grade II Listed. Parking - Allocated parking for 1 car (could be transferred by separate negotiation), Broadband - Standard & Superfast, Mobile Signal - EE likely, Flood Risk - Low Risk, Erosion Risk - Low Risk,
Viewing
Please contact us on 01503 263841 if you wish to arrange a viewing appointment for this property, or require further information.
Disclaimer
Popes Estate Agents - PL13 endeavour to maintain accurate depictions of properties in Virtual Tours, Floor Plans and descriptions, however, these are intended only as a guide and purchasers must satisfy themselves by personal inspection.
Gull Cottage is a beautifully restored Garde II period cottage, finished to an exceptional standard throughout and ideally positioned in the heart of the historic fishing village of Polperro, just moments from the picturesque harbour. Tucked away within the traffic-free Warren, the property offers charm, comfort and a prime village location.
The accommodation is arranged over two floors and includes a stylish open-plan living space with a comfortable sitting area, dining space and a superbly appointed kitchen featuring an oven and hob, fridge/freezer, microwave and a traditional butler’s sink. A separate under-cottage utility room provides a washer/dryer and houses the electric central heating boiler.
On the first floor are two well-proportioned bedrooms, comprising a double bedroom and a flexible twin room, alongside a modern and well-finished shower room. Throughout the cottage, tasteful décor, quality fittings and a blend of antique and contemporary furnishings enhance the character of this delightful home. The property further benefits from gas central heating.
Currently a successful holiday let and offered with vacant possession.
Property Information:
Tenure - Freehold, Local Authority - Cornwall Council, Council Tax Band - Currently rated for business use (previously C), Utilities - Mains electric, water and drainage, electric central heating system in place, Construction - Stone and Grade II Listed. Parking - Allocated parking for 1 car (could be transferred by separate negotiation), Broadband - Standard & Superfast, Mobile Signal - EE likely, Flood Risk - Low Risk, Erosion Risk - Low Risk,
Viewing
Please contact us on 01503 263841 if you wish to arrange a viewing appointment for this property, or require further information.
Disclaimer
Popes Estate Agents - PL13 endeavour to maintain accurate depictions of properties in Virtual Tours, Floor Plans and descriptions, however, these are intended only as a guide and purchasers must satisfy themselves by personal inspection.

